咨询服务热线 0579-86736963
MNS型低压抽出式开关柜是根据市场需求而开发的新一代低压开关柜。产品技术标准符合IEC439《低压成套开关设备和控制设备》、GB7251 《低压成套开关设备》等标准要求。
MNS型低压抽出式开关柜是适用于发电厂、变电站、石油化工、冶金轧钢、轻工纺织等厂矿企业和住宅小区、高层建筑等场所,作为交流50~60Hz,额定工作电压交流660V及以下的电力系统的配电设备的电能转换、分配及控制之用。
正常使用环境条件
△周围空气温度不高于+40°C,不低于-5°C,并且24h内其平均温度不高于+35C;
△大气条件:空气清洁,相对湿度在最高温度为+ 40°C时不超过50%,在较低温度时允许有较高的相对湿度,例如+ 20°C时为90%,但应考虑到温度变化,有可能会偶然地产生凝露;
△海拔高度不超过2000m;
△本装置适应于以下温度的运输和储存过程: - 25C至+5.59C的范围之间。短时间内(不超过24h)可达+70°C, 在这些极限温度下装置不应遭到任何不可恢复的损伤,而且在以上条件下应能正常工作;
△如果上述使用条件不能满足时,应由用户和制造厂协商解决;
△当本装置使用于海上石油钻采平台和核电站时,应另行签订技术协议。

柜体结构
乙开关柜柜体基本结构是由C型型材料装配组成。C型材是以E-25mm为模数安装孔的钢板弯制而成。全部柜架及内层隔板都作餿锌纯化处理。四周门板,恻板则作高压静电喷塑。柜体基本结构见图1所示:柜体基本尺寸如表1表2所示:


柜体的分区设计
△动力配电中心(PC)
1.PC柜内分割成四个隔室:
水平母线隔室:在柜的后部;
功能单元隔室:在柜前上部或柜前左边;
电缆隔室:在柜前上部或柜前右边;
控制回路隔室:在柜前上部; .
2.分隔措施:
水平母线与功能单元隔室、电缆隔室之间用钢板分隔;
控制回路隔室与功能单元隔室之间用阻燃型聚苯醚塑料罩壳分隔;
左边的功能单元隔室与右边的电缆隔室之间用钢板分隔;
3.柜内安装的框架式断路器,均能在关门状态下实现柜外手动操作,观察断路器的分合闸状态和根据操作机构与门的位置关系,判断出断路器在试验位置还是在工作位置。
4.主回路与辅助电路之间设计成分隔结构,仪表、信号灯和按钮等组成的辅助电器单元,均安装于塑料板上,板后用阻燃型聚胺脂发泡塑料做成的罩壳与主回路分离。
△抽出式电动机控制中心和小电流的动力配电中心(MCC)
1.抽出式MCC柜内分成三个隔室,即柜后水平母线隔室,柜前部左边的功能单元隔室,柜前部右边的电缆隔室。水平母线隔室与功能单元隔室之间用阻燃型发泡塑料制造的功能板分隔,电缆隔室与水平母线隔室、功能单元隔室之间用钢板分离。
2. MCC(电动机控制中心)的抽屉分为以下5种:
a. 8E/4:高200x宽150x深400mm;
b.8E/2: 高200x宽300x深400mm; .
C. 8E: 高200x宽600x深400mm;
d. 16E: 高400x宽600x深400mm;
e.24E:高600x宽600x深400mm; .
△后出线开关柜结构
1.柜后出线方案是专为减少开关柜排列宽度而设计的。后出线开关柜的主母线水平安装在开关柜的顶部,柜的后半部为电缆室,进出线电缆均在柜后电缆室连接。开关柜的正面为装置小室,安装开关设备的功能单元。该系列设计将开关柜侧面的电缆室移至后半柜,大大减少了开关柜的排列宽度,以进一步满足变电站空间布置的要求。
2.馈电柜柜宽600mm,深1000/1200mm,顶部为独立的母线室,与装置小室隔离。正面装置小室有效安装高度为72E(E=25mm),经多功能板与后部电缆隔离,充分利用了开关柜的安装空间,结构紧凑,单元配置灵活。背面电缆带门,安装及维护方便。
3.进线柜的宽度按进线单元的框架电流确定,推荐宽度为4008001000mm,柜深1000mm。

母体系统
△开关柜可配置二组主母线,安装在开关柜的后部母线室。二组母线可分别安装在柜后上部或下部。根据进线需要,上下二组母线可分别采用不同或相同截面的材料。二者既可单独供电,也可并联供电,也可作后备电源。
△配电母线(垂直母线)组装在阻燃型塑料功能板中,既可防止电弧引起的放电,又能防止人体接触,通过特殊联接件与主母线联接。
△柜内设有独立的PE接地系统和N中性导体。二者贯穿整个装置,安装在柜前底部及右侧,各回路接地或接零都可就近联接。整个母线系统安装见图3所示。柜架结构件全部采用自攻螺钉联接,具有较高的接地可靠性。
△中性母线和中性保护母线平行接地安装在功能单元隔室的下部和垂直安装在电缆室中。N线与PE线之间如用绝缘子隔离,则N线与PE线分别使用,若二者之间如用导体短接,即成PE/N线。
抽屉类型
△有五种标准尺寸,都是以8E(200mm)高度为基准:
1.8E/4:在8E高度空间组装4个抽屉单元;
2. 8E/2:在8E高度空间组装2个抽屉单元;
3.8E: 在8E高度空间组装1个抽屉单元;
4.16E:在 16E(400mm)高度空间组装1个抽屉单元;
5.24E:在24E(600mm)高度空间组装1个抽屉单元;
△五种抽屉单元可在-一个柜体中作单- -组装,也可用作混合组装,- -个柜体中作单-组装时最多 容纳抽屉单元数见表3。


抽屉的电气和机械联锁
△抽屉单元有可靠的机械联锁位置。通过操作手柄控制,具有明显准确的合闸、试验、抽出和隔离位置。操作机构功能见图4、图5。
△为加强安全防范,操作手柄定位后可加上挂锁,最多可加三把锁,见右图。
△抽屉单元到位后必须严格按照图4、图5所操作开关功能及其位置动作,否则易损坏结构件,请用户使用时注意。

保护接地系统
△装置的保护电路由单独装设的并贯穿于整个排列长度的PE线(或PEN线)和可导电的结构件二部分组成。
△装置中金属结构件,除外表的门和封板外,其余都经过镀锌处理,在结构件的连接处,都经过精心设计,使其能通过一定的短路电流。
辅助电路和电缆槽
△在功能单元隔室的顶部装有辅助电路电缆槽,槽内可按放柜间连接线和公用电源线。
电缆和控制线连接
△在抽出式组件- -侧, 电缆小室中装有接线装置和端子,用于连接出线电缆的控制线和组件之间的接线。进出线电缆和控制线接线装置布置在电缆小室的右侧的道轨上。主回路端子位于后部,控制线端子位于前方45°方向。控制线端子的接线可用螺丝或插入式线鼻子连接或用铜接头来连接。抽出式组件的转接件上主回路端子小于63A的,配有PE端子。
安全保护系统
△每柜设有-块或- -组阻燃型的塑料功能板,安装在主母线室与电器室之间,其作用为有效防止开关元件因故障引起的飞弧与母线之间短路造成的事故,采取了严密的隔离措施。
△上下层抽屉之间有带通风孔的镀锌金属板相隔离,较小的BE/4,8E/2 抽屉其四周均为阻燃型工程塑料件,故相邻回路之间有较强的绝缘隔离作用。
△柜内采用了多种塑料组件以支撑带电部分,这些组件是无卤素的,并具有CT1300等级以上的防漏电性能。

一次方案的排列组合
△功能单元隔室的总宽度为72E。
△在同一台装置中,功能单元的一般排列规律是,小功能单元在上、大功能单元在下。
△8E/4抽屉为4个组成-个8E安装单元,8E/2抽屉为2个组成-个8E安装单元,或2个8E/4抽屉和1个8E/2抽屉组成-个8E安装单元。
△方案中所画的电流互感器为本方案中最多安装数量(方案01至19, 21至39中,可增加一-只电流互感器,用于无功补偿回路)在实际使用中,也可按系统需要减少或不装。
△装置的深度有600mm(MCC单面操作柜)和1000mm(PC和MCC双面操作柜)二种,推荐PC和MCC分开排列使用。当使用分断式功能板时,可允许PC和MCC混合装配在同一台柜中。
△当PC与MCC二种装置相邻排列时,则:
1.当MCC双面柜(或600深度的MCC单面柜)与PC柜相邻排列时,在二柜之间必须加转接柜(其宽度为400mm)如图6例1所示。
2.将单面操作的MCC加深到100mm时,则可以不加转接柜,如图6例2所示。

安装、使用、维修
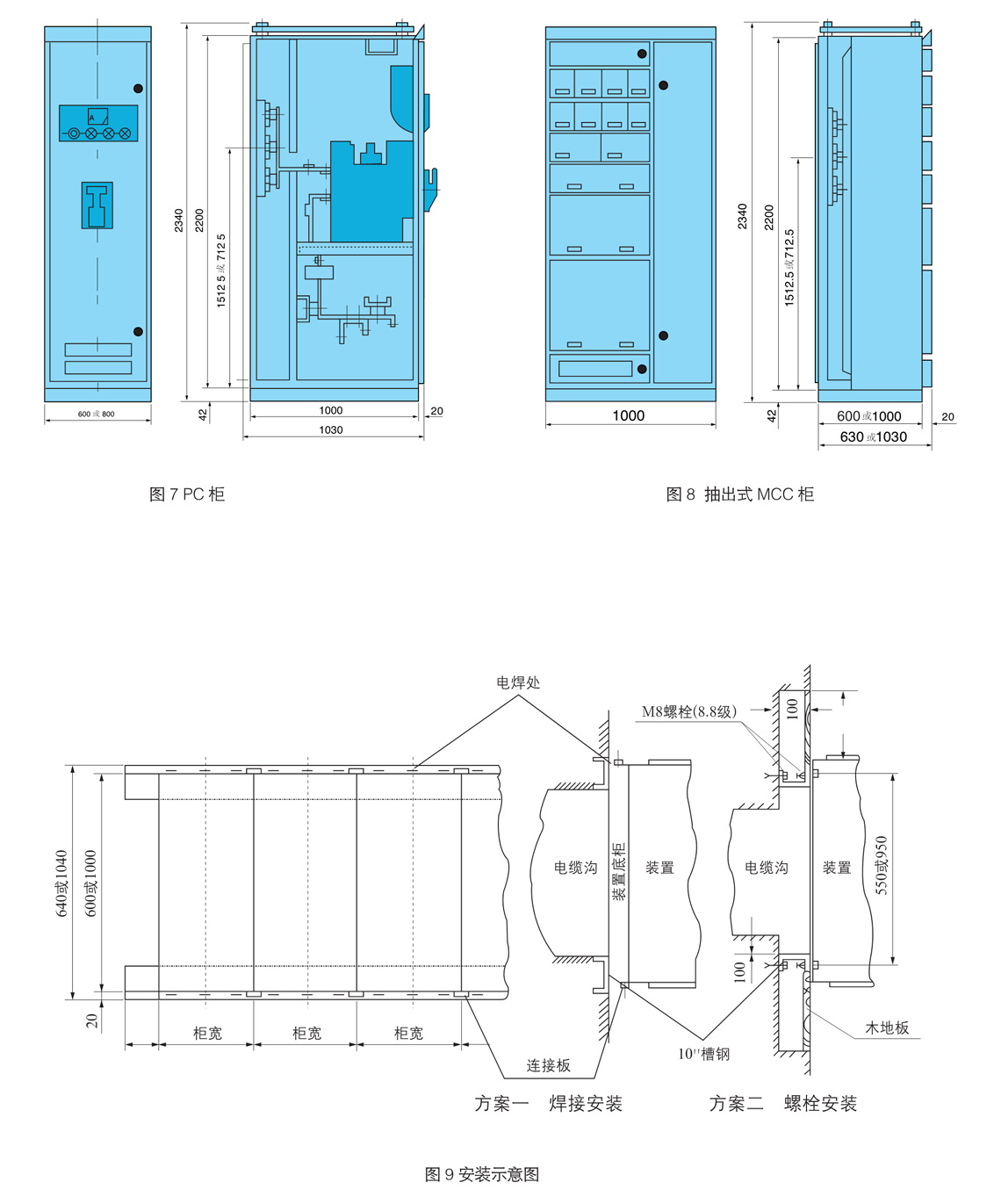
△装置的外形尺寸见图7.图8,安装参考图见图9、图10。
△当装置运抵目有地后,首先应先检查包装箱是否完整,若装置不立即安装,应存放在干燥清洁之处。
△装置推荐为离墙安装式,也可以靠墙安装,安装基础平面要求平整,基础槽钢的水平误差为1/1000,总长偏差3mm。
△所有导电部分的螺栓固定方式推荐使用8.8级和张紧垫圈,其旋紧力矩推荐值见下表:

△MCC方案附件供应二种规格的电缆头护套和一定数量的二次回路用的铜接头。电缆头护套使用情况参见图12(为适应铜接头的冷压加工,二次电缆推荐使用多芯软线。)
△接好电缆后,装置底部应封闭,以防止小动物爬入柜内造成短路事故。
△装置在安装或调整后,在投入运行前,需进行下列各项检查和试验:
a.检查装置内,安装的电器设备和控制接线是否符合工厂的图纸要求。
b.用手动操作各种开关,应操动灵活,无异常和卡轧现象。
C.检查机械联锁机构,电气联锁装置的动作是否正确可靠,应符合系统要求。
d.检查主电路和控制回路的绝缘电阻是否符合规定要求。
e.检查装置内所安装的电气设备接触是否良好是否符合该电器本身的技术条件。
f.检查装置内部有无异物及各部件的安装螺钉是否有松动现象出现。
△抽出式MCC操作须知.
a.抽屉底部应正确进入导体向件后,才能向柜内推动,否则将会发生损坏抽屉或拉不出等不良现象。
b. 8E/4和8E/2抽屉面板上的符号标志和作用见图4,图中从分断位置"O" 到工作位“"箭头表示为:先将操作手柄向里推进后再将手柄从“O”旋转到"I"即可,返回时不须推动,只要将手柄"I"旋向“O" ,放手后,手柄自动弹出。
c. 8E ~ 24E抽屉面板上的符号标志和作用见图5,当手柄到达工作位置“∪”时,机械对主开关解除机械闭锁,这时主开关可以合闸和分闸操作,但是,当主开关合闸后,联锁机构的手柄就不能操作。
△在符合标志的右下角门上有一塑料小盖,这是门的解锁机构,操作过程如下:当抽屉在工作位置时,如果要开门,则先将小盖拔出。然后用螺丝刀插入孔内向下移动锁扣即可开门,开门后务必将塑料小盖盖上,否则将破坏原有的防护等级。
装置地运输和存放
△装置不许倾翻和遭受剧烈震动。
△装置在拆箱后吊装时应使用运输角板,二根钢线丝绳的夹角应≤120°,见图11,如用铲车,滚棍或撬棒,均不允许直接在装置的底架上进行。
△装置在安装就位时如要小距离移动位置,则可在底架的四个角上撬动。
△在装置内不许随意拆卸电器产品和零部件。
△应防止雨淋受潮,环境温度按本样本的有关规定。
产品的成套性
△关柜附有装置简单,产品合格证,产品使用说明书,及必要的图纸,随机附件有门钥匙以及根据配套清单所提供的备品备件等。
订货须知
△用户应提供下列资料
1.主电路方案单线系统图。
2.原理图或原理接线图。
3.每柜所装电路设备的详细规格及数量,并填写订货规范书。
4.开关柜的排列及组合图,平面布置图。

