咨询服务热线 0579-86736963
GCS型低压抽出式开关柜(以下简称装置)是两部联合设计组根据行业主管部门、广大电力用户及设计单位的要求设计研制出的符合国情、具有较高技术性能指标、能够适应电力市场发展需要并可与现有引进产品竞争的低压抽出式开关柜。该装置目前已被电力用户广-泛选用。
装置适用于发电厂、石油、化工、冶金、纺织、高层建筑等行业的配电系统。在大型发电厂、石化系统等自动化程度高,要求与计算机接口的场所,作为三相交流频率为50(60)Hz、额定工作电压为380(400、660)V、 额定电流为4000A及以下的发、供电系统中的配电、电动机集中控制、无功功率补偿使用的低压成套配电装置。装置的基本组织形式见左图。
装置的设计符合下列标准: IEC439-1低压成套开关和控制设备
GB7251低压成套开关设备
JB/T9661- 1999低压抽出式成套开关设备
使用条件
△周围空气温度不高于+40°C,不低于- - 5°C。24小时内平均温度不得高于+35C。超过时,需根据实际情况降容运行。
△户内使用,使用地点的海拔高度不得超过2000m。
△周围空气相对湿度在最高温度为+ 40°C时不超过50%,在较低温度时允许有较大的相对湿度:如+20°C时为90%,应考虑到由于温度的变化可能会偶然产生凝露的影响。.
△装置安装时与垂直面的倾斜不超过5%,且整组柜相对平整(符合GBJ232- 82标准)。
△装置应安装在无剧烈震动和冲击以及不足以使电器元件受到不应有腐蚀的场所。
△用户有特殊要求时,可以与制造厂协商解决

基本技术参数
△基本技术参数见表1
△主电路方案:装置主电路方案共32组118个规格(见表2),不包括由于辅助电路的控制与保护的变化而派生方案和规格。包括了发电、供用电和其它电力用户的需要,额定工作电流为4000A,适合为2500KVA及以下的配电变压器选用。此外,为适应供用电提高功率因数的需要而设计了电容器补偿柜;考虑综合投资的需要而设计了电抗器柜。

△辅助电路方案: GCS辅助电路图册共有辅助电路方案120个,分.上下两册。上册《交流操作部分》共分63个方案,下册《直流操作部分》共有57个方案。
直流操作部分的辅助电路方案,主要用于发电厂变电站的低压厂(所)用系统。适用于200MW及以下和300MW及以上的容量机组低压厂用系统,工作(备用)电源进线,电源馈线和电动机馈线的一般控制方式。
交流操作部分的辅助方案主要用于厂矿企业及高层建筑的变电所的低压系统。有6种适用于双电源操作控制的组合方案,并设有操作电气联锁备用自投、自复等控制电路,工程设计中可以直接采用。
直流控制电源为直流220V或110V,交流控制电源为交流380V或220V,由抽屉单元组成的成套柜。220V控制电源引自本柜内专设控制变压器供电的公用控制,公用控制电源采用不接地方式控制变压器,留有24V电源供需要使用弱电信号灯时采用。
电度表的安装地点和电压的引入方法及其它安装使用要求详见辅助电路图的《编制说明》。
△母线(主母线的组合形式见附图4、附图15),为提高母线动热稳定能力和改善接触面的温升,装置全部采用TMY-T2系列硬铜排,铜排的连接部分必须搪锡,推荐采用全长搪锡,也可选用全长镀银铜母线。
1.水平母线
水平母线于柜后部母线隔室内,3150A及以上为.上下双层布置,2 500A及以下为单层布置,每相由 4条或2条母排组成,大大提高了母线的短路强度。
装置水平母线铜排选用见表3。

2.垂直母线
用于抽屉柜的垂直母线采用“L” 形硬铜搪锡母线。L形母线规格(mm) : (高x厚)(50x5)+ (底x厚)(30x 5)额定电流1000A。
3.中性接地母线
采用硬铜排,贯通水平中性接地线(PEN)或接地+中性线(PE+N)规格见表4。.

※装置内垂直PEN线或PE+N线的规格全部选用40x5
△电器元件选择
装置主要选用技术性能指标先进,采用引|进技术国内已能批量生产的电器元件。
1.主开关
630A及以.上的电源进线及馈线开关,主选AH系列,也可以用DW40、DW48系列、AE系列、3 WE或ME系列,认为有必要时,也可选用进口的M系列或F系列。
2.630A以下的馈线和电动机控制用开关
主要选用TG系列、CM1系列、塑壳开关也可选用NZM系列、TM30系列塑壳断路器。
3.交流接触器
主要选用B系列、LC1系列、3 TB系列的接触器以及与之配套的热继电器、联锁机构。
4.电流互感器全部采用森源电气有限公司监制的SDH系列、SDL 系列、SDL1 系列。
5.熔断器选用高分断能力的Q系列刀熔和NT00系列。
6.为提高电路的动稳定能力,设计了GCS系列专用的CMJ型组合式母线夹和绝缘支件,采用高强度、阻燃型的合成材料热塑成型,绝缘强度高,自熄性能好,结构独特,只需调整积木式间块即可适用不同规格的母线。( 见附图5)
7.为降低功能单元的间隔板、接插件、电缆头的温升,设计了GCS柜专用的接转件,与同类产品比较转接件热容量增大,温升降低。( 见附图6-8)。
8.如设计部门根据用户需要,选用性能更优良、技术更先进的新型电器元件时,因GCS系列柜具有良好的通用性,不会因更新电器元件,造成制造和安装方面的困难。
结构特点
△装置的主构架采用8MF型钢或C型材,构架采用拼装和部分焊接两种结构形式,主构架上均有安装模数孔E=20mm。
△装置各功能室严格分开,其隔室主要分为功能单元室、母线室、电缆室,各单元的功能相对独立。
△装置柜体的尺寸系列如表5。

△功能单元
1.抽屉层高的模数为160mm(见附图9- 10)。分为1/2单元、1单元、1.5单元、2单元、3单元五个尺寸系列,单元回路额定电流400A及以下。
2.抽屉改变仅在高度尺寸上变化,其宽度、深度尺寸不变。相同功能单元的抽屉具有良好的互换性。
3.每台MCC柜最多能安装11个- -单元的抽屉或22个1/2 单元的抽屉。其中一单元以上抽屉采用多功能后板(见附图18)。
4.抽屉进出线根据电流大小采用不同片数的同- -规格片式结构的接插件(见附图6- -8)。
5.1/2单元抽屉与电缆室的转接采用背板式结构ZJ- 2型转接件。转接件外形见附图7。
6.单元抽屉与电缆室的转接按电流分档采用相同尺寸棒式或管式结构ZJ-1型转接件。
7.抽屉面板具有分、合、试验、抽出等位置的明显标志(见附图11-12)。
8.抽屉单元设有机械联锁装置(见附图13- 14)。
△馈线柜和电动机控制柜有专用的电缆隔室,功能单元室与电缆室内电缆的连接通过转接件或转接铜排实现,既提高了电缆的使用可靠性,又极大地方便了用户对电缆的安装与维修。
电缆隔室有二个宽度尺寸。(240mm和440m)可供选用,视电缆数量、截面和用户对安装与维修方便和要求而定(见附图3)。
△装置的功能单元辅助接点对数一单元及以上的为 32对, 1 / 2单元的为20对,能满足自动化用户与计算机接口的需要。
△考虑到干式变压器使用的普通性安全性和油浸变压器的经济性,装置既可以方便地与干式变压器组成一-个组列,也可以与油浸变压器低压母线方便边接。
△以抽屉为主体,同时具有抽出式和固定式,可以混合组合,任意选用。
△装置按三相五线制和三相四线制设计,设计部门和用户可以方便地选用PE+N或PEN方式。
△柜体的防护等级为IP30、IP40, 可以按用户需要选用。
装置特点
△提高转接件的热容量,较大幅度的降低由于转接件的温升给接插件、电源头、间隔板带来的附加温升。
△功能单元之间、隔室之间的分隔清晰、可靠,不因某一单元的故障而影响其它单元工作,使故障局限在最小范围。
△母线平置式排列使装置的动、热稳定性好,能承受80/176kA短路电流的冲击。
△MCC柜单柜的回路数最多到22回,充分考虑大单机容量发电,石化系统等行业自动化电动门(机)群的需要。
△装置与外部电缆的连接在电缆隔室中完成,电缆可以上下进出。零序电流互感器置于电缆隔室内,使安装维修方便。
△同一电源配电系统,可以通过限流电抗器匹配限制短路电流,稳定母线电压在-定的数值, 还可部分降低对元器件短路强度的要求。
△抽屉单元有足够数量的二次插件( 1单元及以上为32对, 1/2单元为20对)可满足计算机接口和自控回路对接点数量的要求。
安装与使用
产品到达收货地点后,首先应当检查包装是否完整无损,发现问题应及时通知合同有关部门做好商务记录,共同分析原因,作好签证和善后处理。
对于不立即安装的产品,应根据正常使用条件和电气设备暂时保管规程要求置于适当的场所,妥善保管。
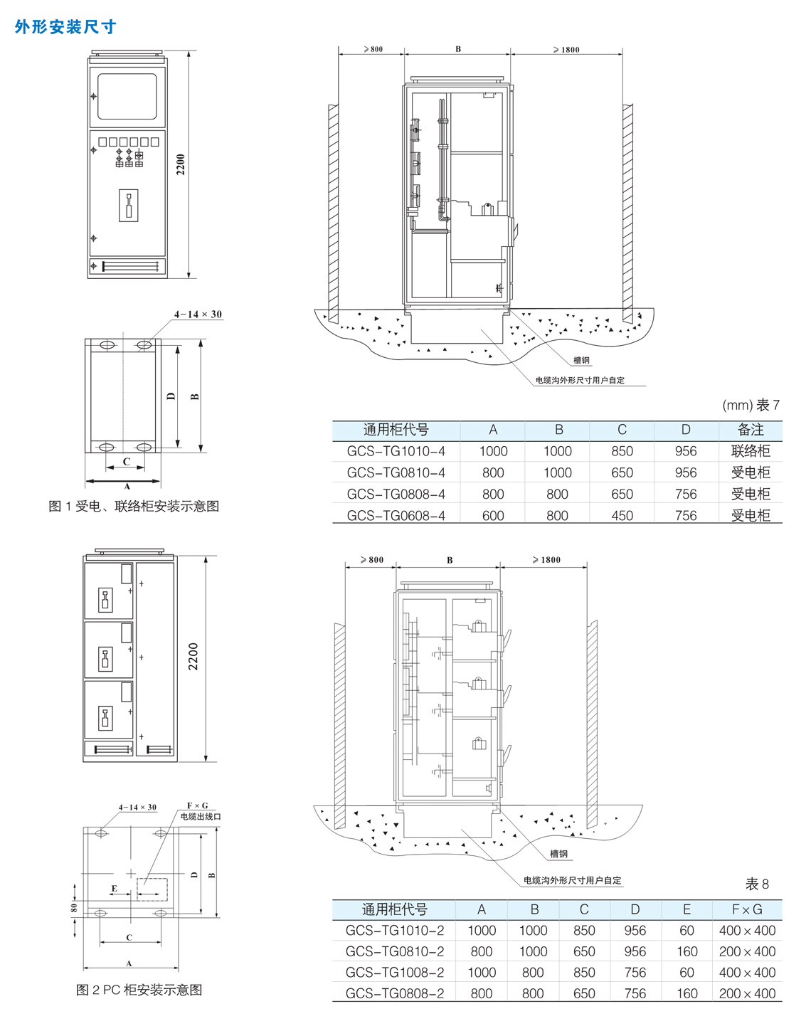
△产品的安装应按安装示意图进行(见图1 -图3,表7-表9)。基础槽钢和采用螺栓固定方式时的螺栓由用户自备。主母线连接时,
如表面因运输、保管等原因有不平整时需平整后再连接紧固。
△装置单独或成列安装时,其垂直度以及柜面不平度和柜间隙缝的偏差符合下表规定。

△产品安装后投运前的检查与试验
1.检查柜面漆或其它覆盖材料(如喷塑)有否损坏,柜内是否干燥清洁。
2.电器元件的操作机构是否灵活,不应有卡涩或操作力过大现象。
3.主要电器的主辅触头的通断是否可靠、准确。
4.抽屉或抽出式结构的动、静触头的中心线应- -致, 触头接触应紧。主、辅触头的插入深度应符合要求。机械联锁或电气联锁装置应动作正确,闭锁或触锁均应可靠。
5.相同尺寸的抽屉应能方便的互换,无卡阻和碰撞现象。
6.抽屉与柜体间怕接地触头应接触紧密,抽屉当推入时,抽屉的接地触头经主触头先接触,拉出时接地触头比主触头后断开。
7.仪表的刻度整定、互感器的变比以及极性应正确无误。
8.熔断器的熔芯规格应符合工作设计的要求。
9.保护的额定值及整定应正确,动作可靠。
10.用1000兆欧表测量绝缘电阻值不得低于1M2。
11.各母线的连接应良好,绝缘支撑件、安装件及 其它附件安装应牢固可靠。
△使用注意事项
1.装置为不靠墙安装,正面操作,双面维修的低压配电柜。柜的维修通道及柜门,必须是考核合格的专业人方可进入或开启进行操作、检查和维修。
2.空气断路器、塑壳断路器经过多次分、合,特别是经过短路分、合后、会使触头部烧伤和产生碳类物质,使接触电阻增大,应按断路器使用说明书进行维护和检修。
3.经过安装和维修后,必须严格检查各隔离之间、功能单元之间的隔离状况,以确保本装置良好的功能分隔性,防止出现故障扩大。
订货需知
△订货合同包含以下内容
1.产品的全型号包括主电路方案号和辅助电路方案号;
2.主电路系统组合顺序图;
3.辅助电路电气原理图;
4.柜内元器件清单;
6.与产品正常使用不符的其它特殊要求。
5.电路中电压、电流、时间等整定参数;
